
N.E.S.T
Eğitim
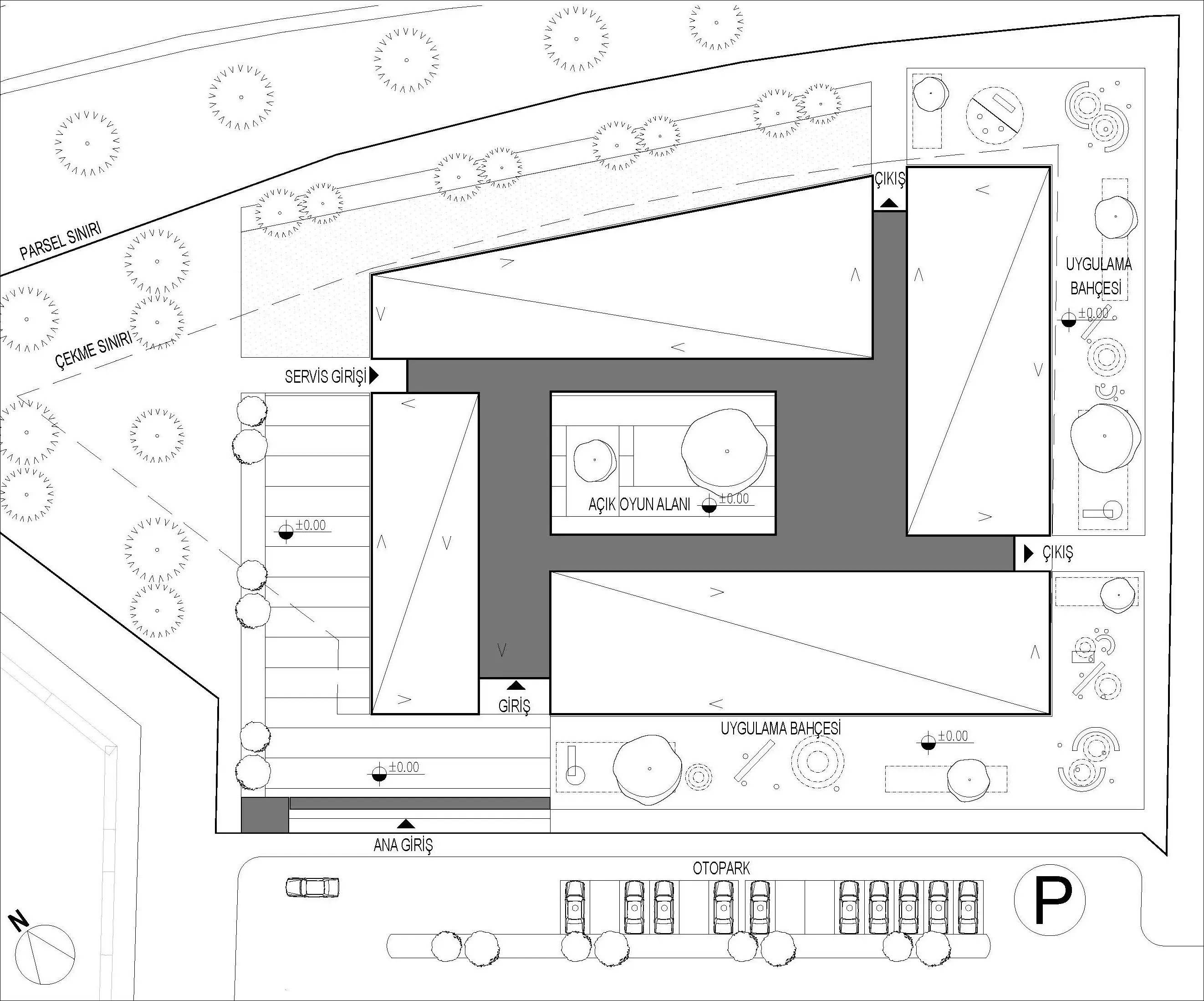
Konya Organize Sanayi içinde ve çevreyolu kenarında konumlanan anaokulu projesinde çocukların daha korunaklı, içe dönük bir eğitim almalarını sağlamak amacıyla avlulu yapı tipolojisi referans alınmıştır.
Konum
Konya, Türkiye
Yıl
2018
Kategori
Eğitim
Durum
Devam Eden
Alan
2.500
m2
Eğitimin sadece kapalı sınıf alanında değil açık alanlarla da bağlantılı olduğu bu tipolojiyle kentin Selçuklu Dönemi Mimarisi belleğiyle de bağ kurmak amaçlanmıştır. Parselin yapılaşma sınırına kadar yayılan tek katlı yapı, anaokulu programı doğrultusunda yönetim kütlesi, sınıf kütleleri ve sosyal kütle olarak dört ayrı kütleye parçalanmıştır. Bu kütleler girişle ve avluyla bağlantı kuran sirkülasyon alanlarıyla birbirine bağlanmıştır.
Sirkülasyon alanları aynı zamanda sınıflardaki eğitimin devamı olan oyun alanlarına dönüşmektedir. Yaz aylarında avlu cam bölücüleri tamamen açılıp oyun alanıyla beraber çalışmaktadır. Kütleler betonarme taşıyıcı sistemle çözülmüş, bunları bağlayan sirkülasyon alanları ve çatı betonarmeye mesnetlenen çelik taşıyıcı sistemle çözülmüştür.
Daha fazla oku











