
A1.23
Konut
A1.23, cam çatısından süzülen yoğun ışığı toprak dokularıyla dengeleyerek mekanda dingin bir atmosfer oluşturuyor.
Konum
Istanbul / Türkiye
Yıl
2026
Kategori
Konut
Durum
Tamamlanan
Fotoğraf
Egemen Karakaya
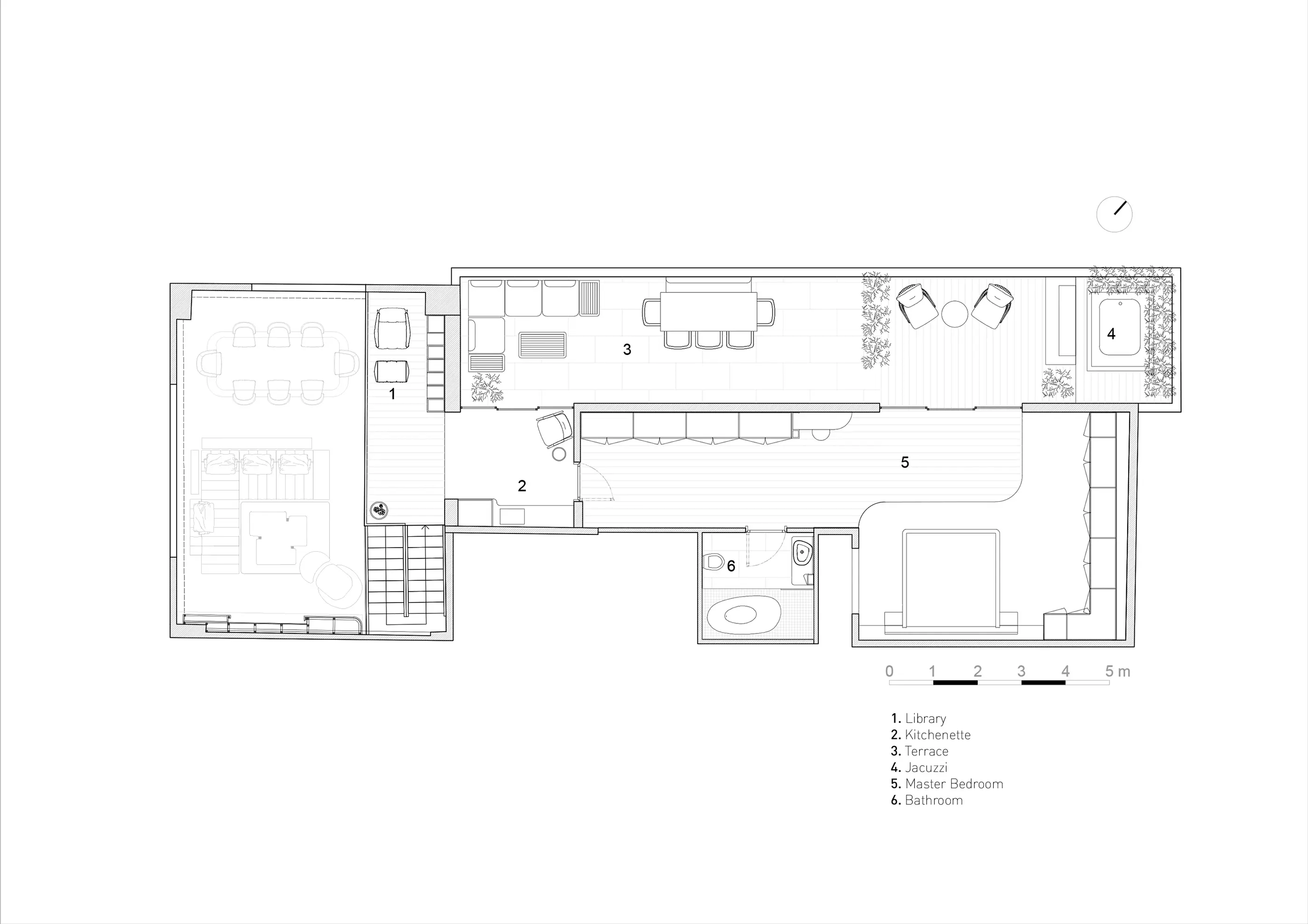
Bu proje, Erenköy’de konumlanan dubleks bir dairenin renovasyonunu kapsamaktadır. Yapının karakterini belirleyen en önemli unsur, cam çatı ile örtülü ve çift hacimli salon mekânıdır. Tasarım sürecinin çıkış noktası, bu hacimde oluşan yoğun ve kontrolsüz doğal ışığı dengelemek üzerine kurulmuştur. Bu doğrultuda, ışığın etkisini yumuşatmak amacıyla doğal, mat ve pastel tonlarda bir malzeme paleti tercih edilmiştir. Duvarlarda kullanılan toprak tonlu boyalar, zemindeki fibercement beton dokusu ve meşe ahşap yüzeyler, mekânın genel atmosferini tanımlamaktadır. Bu nötr kurgu, taş, tekstil ve bitki seçimlerinde esnek bir dil oluşturulmasına olanak sağlamıştır.
Mekânsal organizasyonda, teras kapısı dışında keskin sınırlar oluşturulmamış; hacimler arası geçişler akışkan formlar, malzeme sürekliliği ve renk geçişleriyle tanımlanmıştır. Yaklaşık 150 m²’lik yaşam alanı; mutfak, bar, oturma alanı, okuma köşesi, teras mutfağı, teras yemek alanı ve jacuzzi gibi farklı işlevleri bir arada barındıracak şekilde kurgulanmıştır.
Ortak dolaşım alanlarında beton doku süreklilik sağlarken, duvardan tavana devam eden ve soğutma sistemini de bünyesinde barındıran meşe yüzeyler, merdiven aracılığıyla katlar arasında bir geçiş elemanı olarak çalışır. Giriş holünde yer alan tezgâh ve metal şaraplık elemanı, mutfak ve bar alanının sınırlarını tanımlar. Yüksekliği vurgulanan ve kıvrımlı formuyla öne çıkan şömine/TV/kütüphane ünitesi, genel mekân kurgusundan ayrışarak oturma alanını işaretler.
Teras zemininde taş yüzey üzerinden yükselen ahşap basamaklar, ahşap deck ile tanımlanan jacuzzi alanına ulaşımı sağlayarak bu mekânı daha kişisel bir kullanıma dönüştürür.
Yatak odalarında, yatak çevresinde halı ile tanımlanan alanlar, ahşap döşemede oluşturulan eğrisel sınırlarla ayrıştırılmıştır. Flütlü cam kullanımı, ışık oyunlarını zenginleştirirken mekâna derinlik kazandırmakta ve dolap ile giyinme alanlarında yarı geçirgen bir filtre görevi görmektedir. Uyku alanlarında genel malzeme dili korunmuş; tekstil ve lake yüzeylerde, mevcut paletle uyumlu farklı ton geçişleri tercih edilmiştir.
Üç banyoda farklı seramik yüzeyler kullanılarak her biri kendine özgü bir karakter kazanırken, ebeveyn banyosunda küvet alanı özel baskılı seramiklerle vurgulanarak mekânsal ayrım güçlendirilmiştir.
Daha fazla oku






















